Aller au contenu
Accueil
A propos
Permis de construire
Autorisation de construire
Projets
Logement collectif
ERP
Maison individuelle
Aménagement intérieur
Etudes
Expérimentation
Nos réalisations
Nos Missions
Contact
Accueil
A propos
Permis de construire
Autorisation de construire
Projets
Logement collectif
ERP
Maison individuelle
Aménagement intérieur
Etudes
Expérimentation
Nos réalisations
Nos Missions
Contact
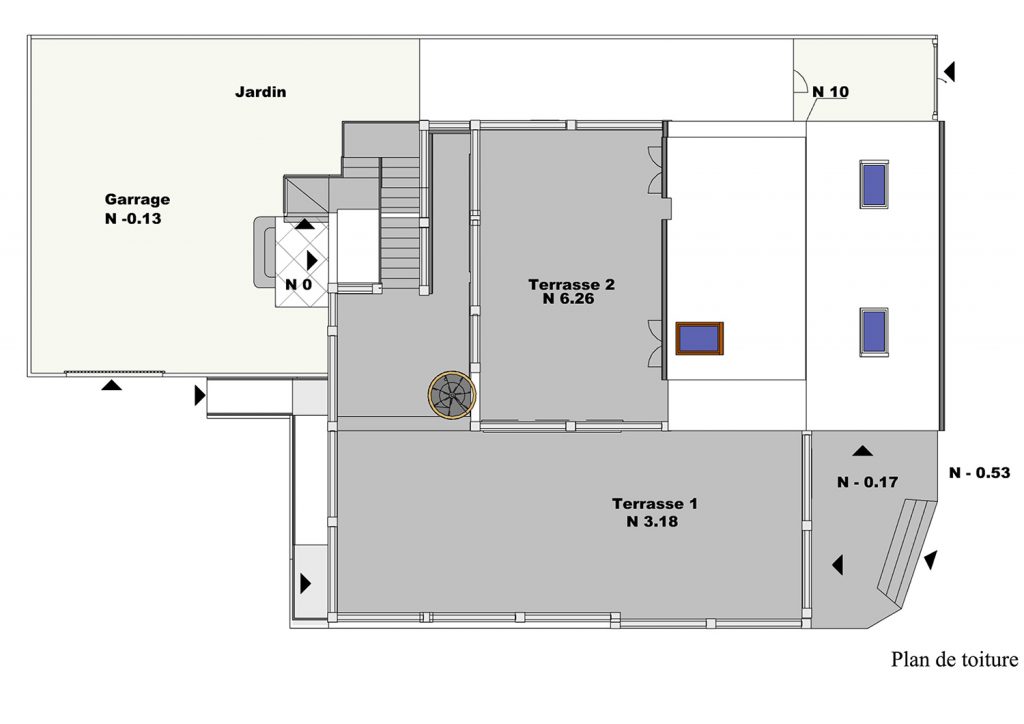
ERP Salle polyvalente, logement de fonction
Accueil
/ ERP Salle polyvalente, logement de fonction
Projet :
ERP Salle polyvalente, logement de fonction
Surface :
400m² SP
Client :
Privé, Mr et Mme K
Localisation :
91200, Athis Mons
Montant des travaux Estimé à :
100.000 €
Mission :
Relevé de l’existant
Année :
2016
Catégorie :
E.R.P