Extension de maison

Projet : Extension de maison Surface : 80m² Client : Privé, Mr et Mme M Localisation : 77840 Crouy sur Ourq Montant des travaux Estimé à : 160.000 € Mission : Permis de construire Année : 2017 Catégorie : Maison individuelle Il s’agit d’un projet situé sur la commune de Crouy sur Ourq, Comprenant deux […]
Construction de deux logements

Projet : Construction de deux logements Surface : 92m² Client : Privé, Mr et Mme G Localisation : 91470, Forges les Bains Montant des travaux Estimé à : 190.000 € Mission : Permis de construire Année : 2014 Catégorie : Maison individuelle Il s’agit d’une parcelle de 331m2 située sur la commune de Forges Les […]
Construction de 10 logements collectifs

Projet :Construction de 10 logements collectifs Surface : 455m² SP Client : Privé, Mr et Mme H Localisation : 91210, Draveil Montant des travaux : 800.000 € Mission : Permis de construire Année : 2017 Catégorie : Logement collectif
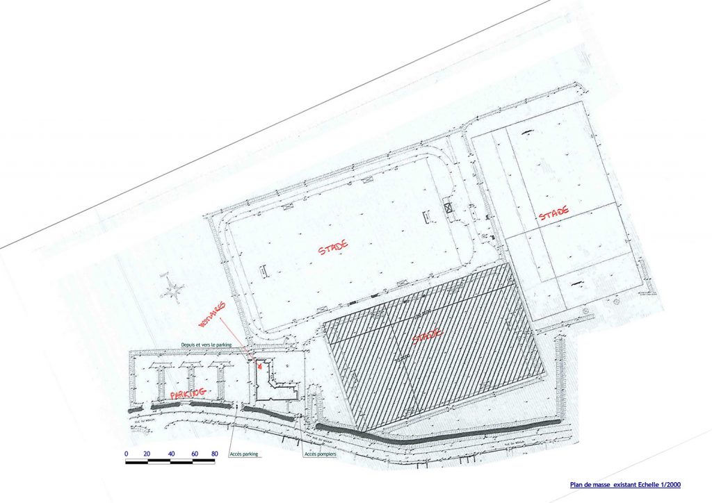
Extension des vestiaires Stade de Marcoussis/Essonne

Projet : Extension des vestiaires Stade de Marcoussis/Essonne Surface : 80m² SP Extension Client : Commune de Marcoussis Localisation : 91460, Marcoussis Montant des travaux Estimé à : 160.000€ hors les études Mission : Esquisse, pour donner suite à un appel d’offre public/Projet présélectionné Année : 2016 Catégorie : E.R.P
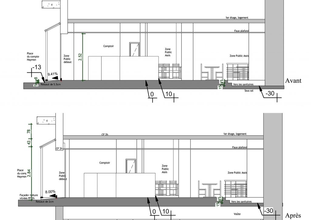
Changement de destination ERP

Projet : 2016/Changement de destination d’une salle de sport, en salle polyvalente, ERP catégorie 4, type L, autorisation accordée 2018 /Changement de destination d’une salle polyvalente, en un « ESCAPE GAME », ERP catégorie 5, type P. autorisation en cour d’instruction Surface : 500m² SP Client : privé, Mr H, Mr C Localisation : 91310 […]
ERP Salle polyvalente, logement de fonction

Projet :ERP Salle polyvalente, logement de fonction Surface : 400m² SP Client : Privé, Mr et Mme K Localisation : 91200, Athis Mons Montant des travaux Estimé à : 100.000 € Mission : Relevé de l’existant Année : 2016 Catégorie : E.R.P
Plaine de jeux

Projet : Plaine de jeux Surface : 1400m² SP Client : privé, Mr N Localisation : 91000 Evry Montant des travaux Estimé à : 700.000 € Mission : Esquisse Année : 2013 Catégorie : E.R.P
Mise en conformité ERP

Projet : Mise en conformité accessibilité, et sécurité incendie. Autorisation en cour d’instruction. ERP catégorie 5, type N Surface : 100m² SP Client : privé, Mr B Localisation : 91100 Corbeil Essonnes Montant des travaux Estimé à : 15.000 € Mission : Réalisation du dossier mise en conformité, ERP, autorisation de travaux, déclaration préalable Année […]
Changement de destination ERP

Projet : Construction de 10 logements collectifs Surface : 101m² SP Client : privé, St NR EXO MARKET Localisation : 91130, Ris Orangis Montant des travaux Estimé à : 20000 € Mission : Réalisation du dossier changement de destination ERP, autorisation de travaux, déclaration préalable, et changement d’enseigne Année : 2017 Catégorie : E.R.P
Changement de destination ERP

Projet : Changement de destination d’un ancien salon de coiffure, en crêperie, ERP 5iéme catégorie type N Surface : 30m² SP Client : privé, Mr R Localisation : 91600 Savigny sur Orge Montant des travaux Estimé à : 15.000 € Mission : Réalisation du dossier changement de destination ERP, autorisation de travaux, déclaration préalable, et […]